Finca Campanet
Bauherr
Privat
Architekten
LP 3 + 5 - Atelier Anjora
LP 6-8 - Moscari SL
Campanet, Mallorca
2023
-
2026
PLANUNG + UMSETZUNG
Info
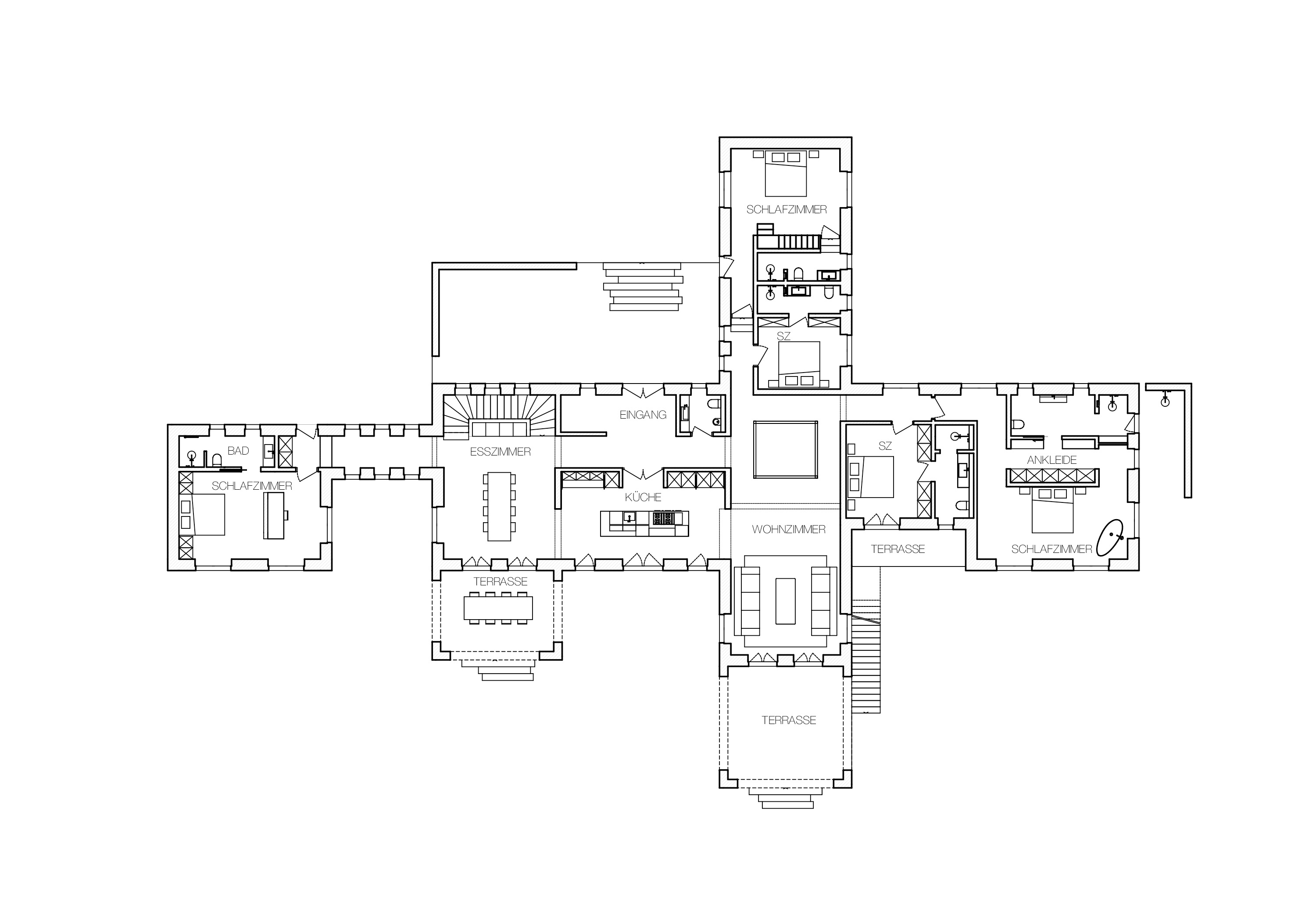
Diese Neubau Finca in Campanet im Norden Mallorcas verbindet traditionelle mallorquinische Stil mit moderner Bautechnik und Architektur.
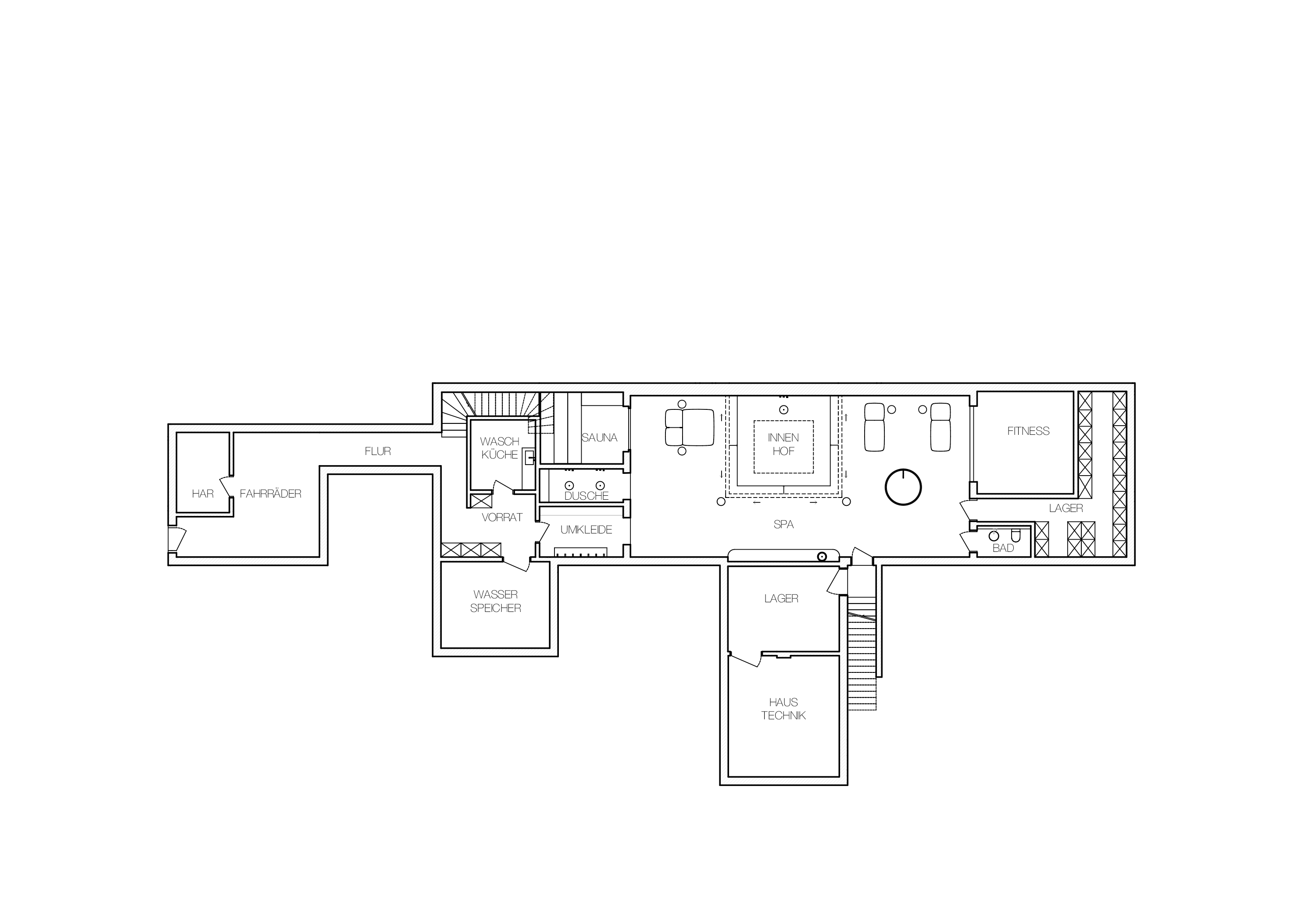
Das Einfamilienhaus zeichnet sich durch typische Dächer aus und umfasst mehrere Schlafzimmer, Wohnzimmer und Terrassen. Im Untergeschoss befindet sich ein hochwertiger Spa-Bereich, während draußen eine großzügige Poolanlage zur Verfügung steht.
Die Moscari Bau- und Planungsgesellschaft ist verantwortlich für die Projektsteuerung sowie die vollständige bauliche Ausführung und Umsetzung.
Atelier Anjora hat die Planung und Konzeption der Architektur sowie das Interior Design der Finca übernommen.
















