Portocolom
Bauherr
Privat
Architekten
Atelier Anjora
Mallorca
2022
-
2023
KONZEPT + PLANUNG + UMSETZUNG
Info
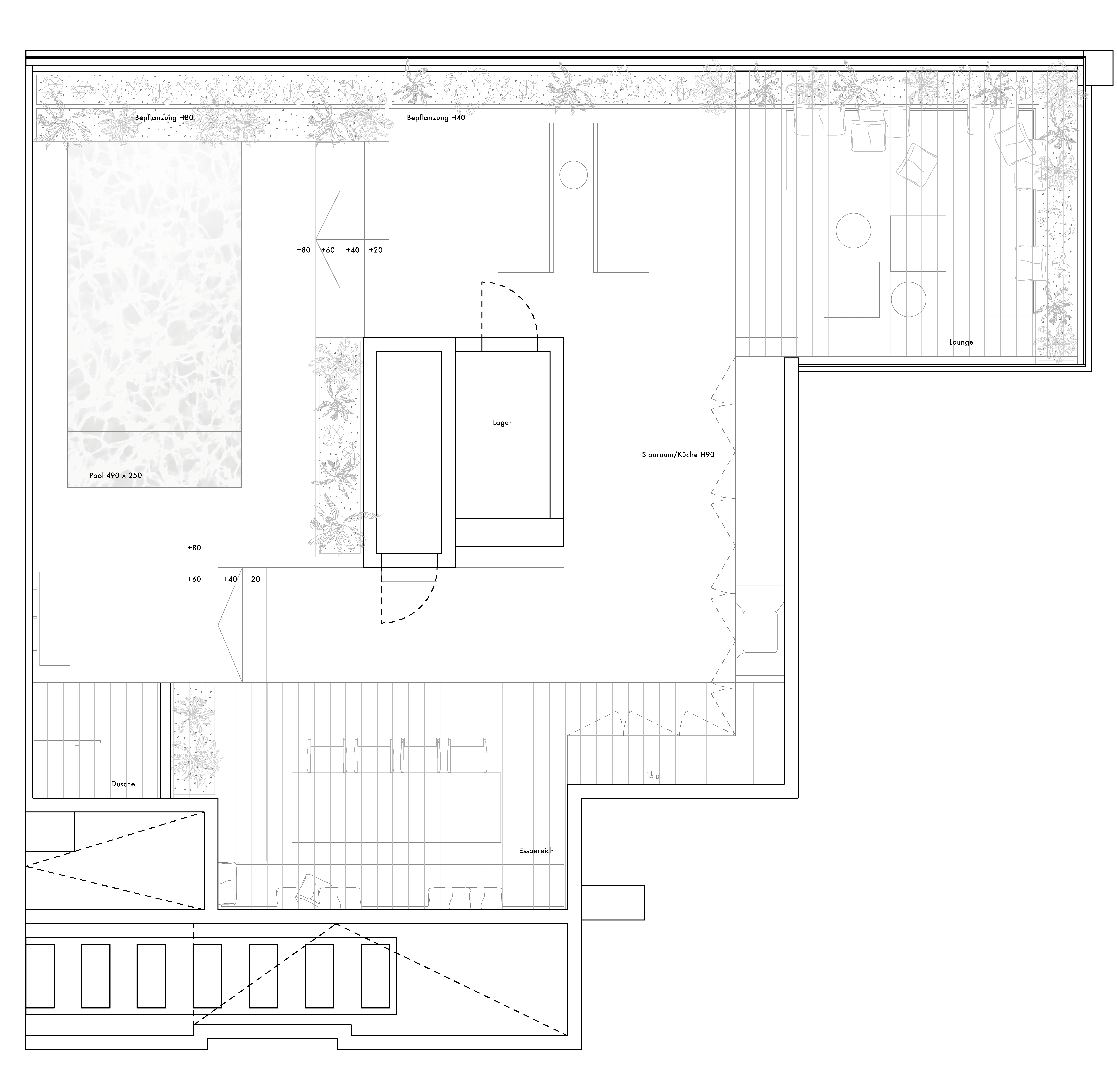
Bei dem Projekt handelt es sich um den Umbau und die Sanierung einer Eigentumswohnung sowie der Neugestaltung der dazugehörigen Dachterrasse.
Die Wohnung wurde entkernt und ganzheitlich umgestaltet. Auf der Dachterrasse entstand unter anderem eine Poolanlage und eine Outdoorküche.
Atelier Anjora erstellt das Interior Design und die Planung.



















